Desain Rumah Minimalis Ukuran 6 X 11

Desain Rumah Minimalis Ukuran 6 X 11. Watch Desain Rumah Minimalis Ukuran 6 X 11 video for free

Uploaded by Contoh Minimalis. Watch time: 3:59
→ Put FB Downloader Or CPA Offer Here

Desain Rumah Minimalis Ukuran 6 X 11 snapshots

Contoh Desain Rumah Minimalis Sederhana Beserta Ukurannya

11 Bentuk Rumah Sederhana Ukuran 6x9 1 & 2 Lantai

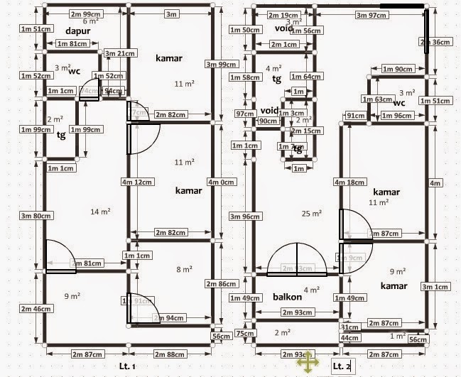
SketsaRumahMinimalisDot: Rumah Minimalis Ukuran 6x11

desain rumah minimalis 2 lantai ukuran 6x10 terpopuler ...

64 Desain Rumah Minimalis Ukuran 9x15 | Desain Rumah ...

Desain Rumah Minimalis 2 Lantai 9 X 15 - Gambar Foto ...

desain rumah minimalis ukuran 5 x 6 dengan 2 kamar tidur ...

10 Bentuk Rumah Sederhana Ukuran 6x9 baru - Desain Rumah ...

69 Desain Rumah Minimalis Ukuran 6x12 | Desain Rumah ...

LihatTutupKomentar